Про комплекс

Skyline – це сучасний житловий комплекс преміумкласу, що задає новий стандарт життя у Чернівцях. Архітектура, продумана інфраструктура та унікальні простори для відпочинку створюють атмосферу курорту в центрі міста.

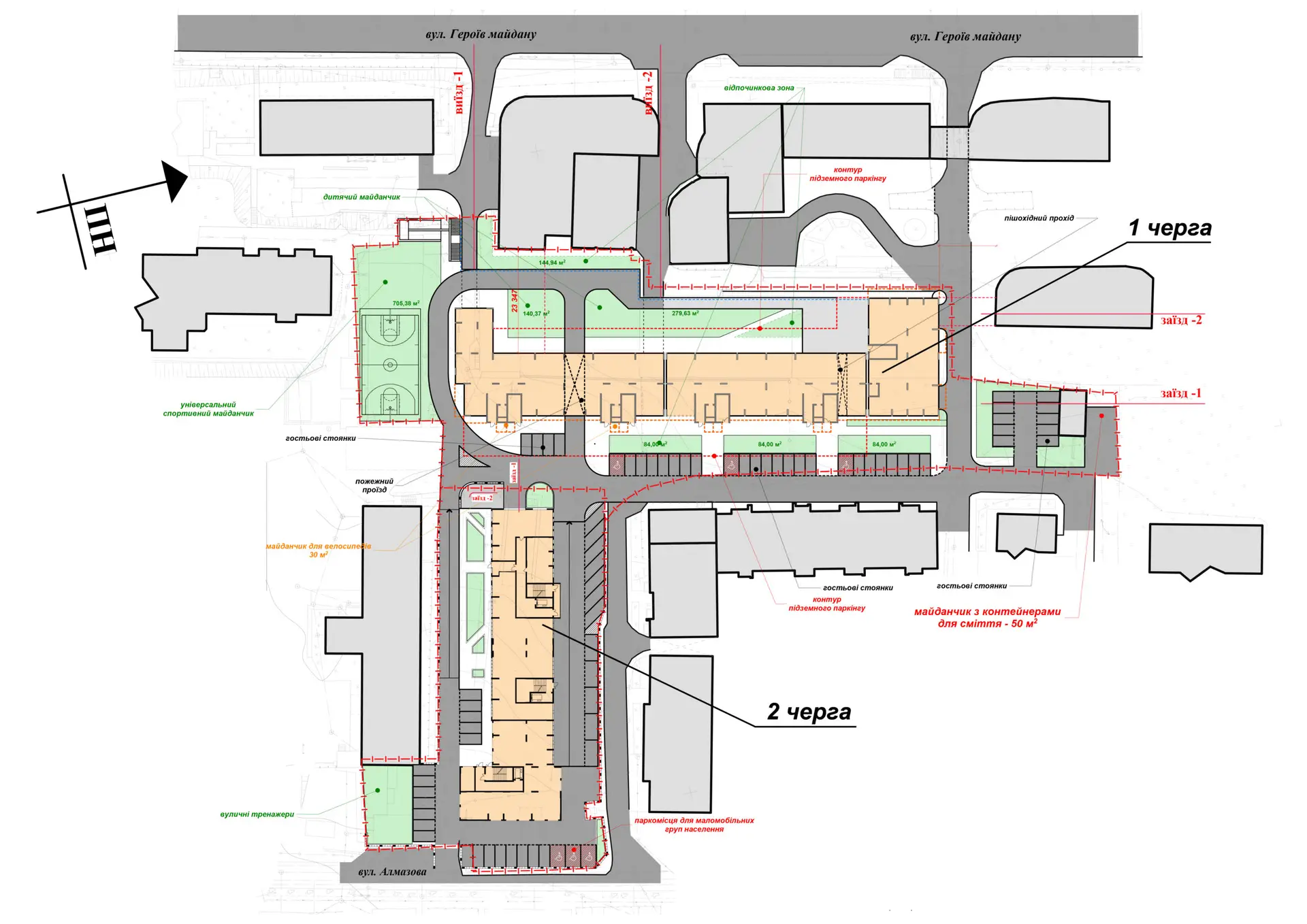
Основна родзинка Skyline – басейн на даху з панорамним видом на місто. До цього додаються закрита територія з охороною, дизайнерський хол, дитячий і спортивний майданчики, інноваційний двоповерховий паркінг та сервісні приміщення для зручності мешканців.

У комплексі передбачені квартири з різними плануваннями – від однокімнатних до просторих трьохкімнатних. Skyline об’єднує стиль, комфорт і функціональність у кожній деталі.

Термін здачі комплексу:

I квартал 2027 року

Галерея ЖК

Технічні характеристики

Матеріали стін
Матеріали стін

Матеріали стін:

керамічний блок, повнотіла цегла

Вид утеплення
Вид утеплення

Вид утеплення:

мінеральна вата

Висота стель
Висота стель

Висота стель:

2.8 м

Поверховість
Поверховість

Поверховість:

10 поверхів

Паркінг
Паркінг

Паркінг:

підземний, надземний гостьовий

Процес забудови
Процес забудови

Технологія будівництва:

монолітно-каркасна

Басейн на
Басейн на

Клас житла:

преміум

Квартири
Квартири

Квартири:

1/2/3-кімнатні, дворівневі

Зображення будинку
Зображення будинку

К-сть квартир:

360

Тип опалення
Тип опалення

Тип опалення:

індивідуальне газове

Зображення карти з адресами
Зображення карти з адресами

Адреса:

вул. Олекси  Алмазова 4, Чернівці

Render 21 (2)

Черг будівництва:

2

Локація

Генплан

Умови розтермінування

Розтермінування 1-ий варіант

30% - перший внесок при підписанні договору
20% - другий на половині терміну розтермінування
50% - при здачі будинку в експлуатацію